Hahatoko, LE DUPLEX COCON

Rénover pour co-habiter !


Rénovation d’un duplex pour vivre à deux sans se déranger !

  • structurer le RDC en filtrant les espaces séjour et cuisine

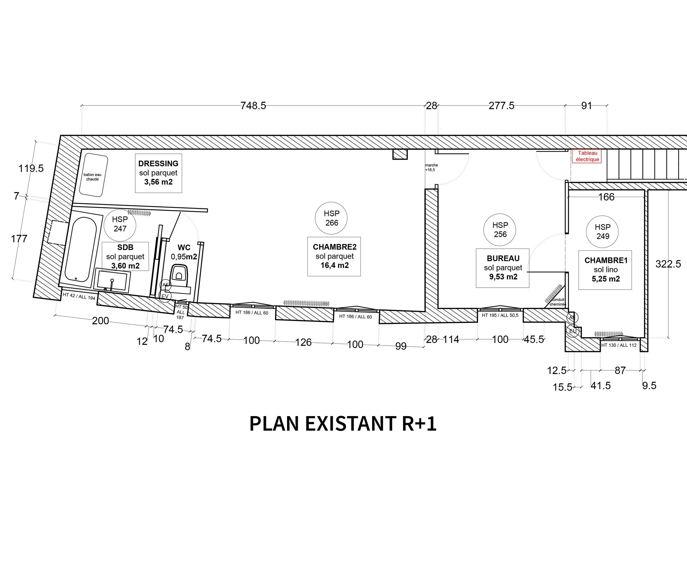
  • redistribuer l’étage pour supprimer les accès en enfilade des deux chambres et de la salle de bain, avec la création d’un couloir et d’une seconde salle d’eau

  • profiter du réaménagement pour créer des rangements : un filtre d’escalier bibliothèque, des penderies et placard dans l’entrée, des dressings dans les chambres et un espace buanderie dans la salle de bain.


AVANT

Previous
Previous

Remote Job · Romainville

Next
Next

Salle d'Eau Terrazzo · Bordeaux